Unsere Gewerbeflächen am Obertor: zentral, charmant, gemeinschaftlich

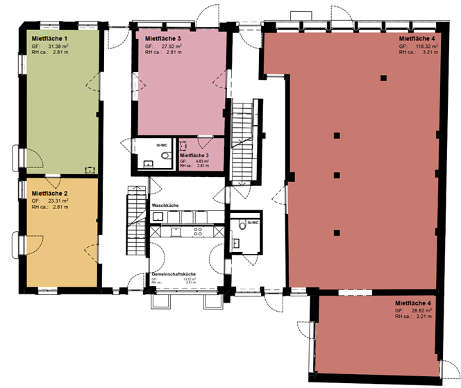
Mitten in der oberen Altstadt, eingebettet in einen wunderschönen Innenhof, entstehen im Erdgeschoss Gewerbeflächen und gemeinschaftlich genutzte Bereiche. Der Erstbezug ist auf Ende 2027 geplant.

Bereits jetzt suchen wir interessierte Mieter:innen, die früh mitdenken und den Ort mitgestalten wollen und die wir eng in die Planung einbinden können.

Raum für gute Ideen!

Wir wünschen uns publikumsorientiertes Gewerbe. Wir stellen uns Gewerbetreibende der produzierenden und kreativen Wirtschaft vor, idealerweise auch einen Gastronomiebetrieb mit kalter Küche. Eine vollausgestattete Gastroküche ist nicht möglich; gesucht werden «emissionsarme» Gewerbe.

Beispiele: Fotograf:in, Galerie, Grafiker:in, Velomech mit Sandwichbar, Buchhandlung mit Kafiecke, Blumenladen, Weinhandlung, Haarsalon etc.

Das Gewerbedossier fürs Obertor 15+17a